博客频道
网站首页
用户名:
密码:
记住登录名
合抱木装修网
首页
日志
个人档案
合抱木装修
广州市合抱木信息科技有限责任公司
设计师助理
博客公告
合抱木装修网集合家装设计、工装设计、乐园设计、家政业务等于一体,给客户提供一站式的家居设计相关服务,您可以在合抱木找装修公司、设计师、材料商、建材、家政等各项相关的家居服务。 联系电话:18102290528 联系QQ:3143592792
日志分类
装修公司
(41)
儿童乐园设计
(15)
最近访客
yokey
2年前
Kevin Ni
3年前
BOHUIBA
3年前
陈蔷
6年前
最新评论
友情链接
装修公司
儿童乐园设计
广州装修公司
装修贷款
最近更新博客
张铁军
袁志文
装饰设计
名杰客服
刘研德生
意辰
刘建东
李贵芝
设计1667
统计信息
博客:
61 篇
评论:
0
访问:
正在读取...
日志
【南沙装修公司】抢抓机遇,乘势而上:合抱木2023年度工作大会顺利召开
(2023-03-20 11:43)
标签:
合抱木
装修公司
3月16日下午,合抱木在广州总部召开2023年度工作大会,全面回顾2022年度工作,总结经验、指出问题与不足;对2023年主要工作目标及任务、措施等进行了部署及安排;表彰先进员工,并动员公司上下以奋斗者的姿态开启新征程! 会上,总经理彭治华作了题为《以市场为先 狠抓质量 严保交付 抢机抓遇实现企业规模快速发展》的年度工作报告。报告从经营情况、公司管理、品牌建设、云为系统开发、企业文
点击此处查看全文
»
评论 (
0
) | 阅读 (
139
) | 类别:
装修公司
合抱木装饰‖36方老破小爆改后,变成2室一厅时尚居所!
(2022-12-12 14:46)
标签:
南沙装修公司
装修公司
今天南沙装修公司给大家分享的是36㎡老破小旧房改造案例,原始户型和改造后的户型都是两居室,但是改造后的空间更加开阔,也增加了许多收纳柜,室内变得更加开阔整洁。常住成员为2人+4喵,究竟怎么样的布局才能满足所有成员的需求呢? 入门玄关 这里是入门玄关区,左右两边都有定制的柜子,一侧是窄柜+穿衣镜,方便进来时收纳一些小物件及出
点击此处查看全文
»
评论 (
0
) | 阅读 (
109
) | 类别:
装修公司
合抱木装饰‖120㎡三居室LDK一体化设计装修,网红侘寂风?
(2022-12-05 17:00)
标签:
LDK
三居室
侘寂这个词,最近是不是经常看见?似乎突然就成了一种流行~首先侘寂(chà jì)的读音可不要读错哦!看到很多介绍都说侘寂是日本美学意识的一个组成部分,但文化在交流及传播的过程中,总会融入一些本土的元素,而日本文化最早也是源于中国,所以小木更喜欢说这是“东风侘寂风”! 今天分享的这套120㎡三居室装修,就是东风侘寂风,采用LDK一体化布局
点击此处查看全文
»
评论 (
0
) | 阅读 (
156
) | 类别:
装修公司
合抱木设计|57㎡小户型旧房翻新装修,长条户型改造后,也能变宜居学区房!
(2022-11-09 10:21)
标签:
旧房翻新
小户型装修
今天给大家分享的是一套57.6㎡的旧房翻新装修,还是个比较奇葩的长条户型,只有两居室+一个入户区,因为其他的功能空间都不完善,需要专业人士好好进行规划,一家人才能够住得舒适。 一、户型分析 原始户型图:①从中可以看到这套老房子的奇葩程度,采光和通风都比较差,说是两居室,但其中的一个房间还得兼具客餐厅等功能,功能设置会比较混乱。②业主一家在老房子中居住了好几年
点击此处查看全文
»
评论 (
0
) | 阅读 (
121
) | 类别:
装修公司
合抱木装修|60㎡老破小学区房装修改造,娃有独立房间真好
(2022-11-04 17:50)
标签:
装修改造
装修设计
↓合抱木专业资质↓建筑装修装饰工程专业承包二级资质 建筑装饰工程设计专项乙级资质 建筑工程施工总承包三级资质 今天给大家分享的案例是一套老破小学区房,60㎡的面积有三个房间,所以没有公共活动空间;但屋主是二胎家庭,一家四口居住在这里,且两个娃还正处于学龄阶段,无论是学习还是睡眠,正是需要独立空间的时候。 #老房改造 同时,屋主希望能够多和两个娃进行亲子
点击此处查看全文
»
评论 (
0
) | 阅读 (
189
) | 类别:
装修公司
合抱木装饰|70㎡小三房装修改造,全屋大改后,妥妥的豪宅就有啦!
(2022-09-21 11:17)
标签:
装修改造
装修设计
今天装修公司给大家带来一套室内实用面积70㎡的小三房改造设计,常住人员是年轻小俩口,不需要太多房间。希望将主人房改造成套房的形式,包含有卫生间、衣帽间于一体的设计,另外公共空间要宽敞,也要时尚大气! 一、户型分析 原始户型图:从户型图中可以看到,虽然三房两卫的格局较为方正,但室内隔墙多,每个房间的空间也比较狭小,且过道面积也不好利用,比较浪费空间。玄关区域过
点击此处查看全文
»
评论 (
0
) | 阅读 (
242
) | 类别:
装修公司
72㎡房屋改造,现代简约风格如何做到简单又耐看?
(2022-08-26 16:02)
标签:
装修案例
装修公司
今天给大家分享一套72㎡简约风格装修,这套房子原始格局是两居室,但现业主是一个人居住,所以改造成一居室使用。业主喜欢现代简约风格,要求简约、时尚、耐看,装修公司能够实现业主的这些要求吗? 一、户型分析 房子的原始格局还是挺方正的,没有需要大改的地方,只是不需要两个卧室,所以将原本的次卧改造成书房,利用率更高! 最终优化后的户型方案,主卧和次卧打通共用一扇门,厨房改成
点击此处查看全文
»
评论 (
0
) | 阅读 (
206
) | 类别:
装修公司
合抱木装饰2022新春开工仪式,开门大吉迎新征程!
(2022-02-17 11:12)
标签:
合抱木装饰
开工仪式
开工大吉·开年迎好运 所谓“一年之计在于春”,新春开工仪式自然要有满满的仪式感,由此展开2022年全新征程,开年迎好运! 2022年2月10日,正值大年初十,吉时一到,合抱木装饰开工仪式由董事长带领全体员工,在合抱木总部隆重举行。 上香祈福作为必不可少的环节,每位员工都诚心参与其中,这也是我们中华民族传统的祭祀形式之一。无论香纸宝烛还是
点击此处查看全文
»
评论 (
0
) | 阅读 (
157
) | 类别:
装修公司
【合抱木装饰】单身公寓装修如何合理隔断还能有大收纳空间?
(2020-11-27 11:47)
标签:
单身公寓
装修公司
今天继续带来单身公寓装修效果图哦,这个是一室一厅的户型设计,大家觉得怎么样? 一室一厅的布局包括客厅、餐厅、厨房、卧室,因为卧室和卫生间那里都是用柜子进行的隔断设计,既有储物空间又能实现合理的隔断。 推荐文章:广州装修怎么买窗帘?窗帘购买水很深! 这是餐厅的设计,看右边的柜子就是隔断啦,比起墙体隔断是不是更实用些呢? 卧室与客厅的隔断同样是如此操作,这个单身公寓的每个空间功能的划分还是比较明
点击此处查看全文
»
评论 (
0
) | 阅读 (
133
) | 类别:
装修公司
合抱木装饰分享:客厅装修电视背景墙什么风格?
(2020-10-29 11:41)
标签:
合抱木
客厅装修
装修公司
小编直直白白的告诉大家,今天分享的8张客厅装修图中,就是选择的室内设计公司做的欧式和美式两种风格哦,大家看看这两种风格可以区分出来吗?你能够看出每一张究竟是什么风格的设计吗? 推荐文章:儿童乐园必须知道的小型游乐场的优劣势分析 有些客厅装修图是比较容易区分出具体的装修风格,例如这张就很明显是欧式风格,因为一些特征还是比较明显的,看看它的电视背景墙造型、天花以及地面的装饰,还有灯具的选择,是不是就
点击此处查看全文
»
评论 (
0
) | 阅读 (
281
) | 类别:
装修公司
装修公司做二手房翻新,30年老房居然变得这么宽敞!
(2020-10-20 10:51)
标签:
二手房翻新
装修公司
今天小编带大家来到的一套房子是位于福建厦门哦,这套老房子是原本就有30多年的房龄,因为是学区房所以地理位置自然是很不错的,再结合它拥有的宽敞居住面积,并且是零公摊甚至是负公摊,所以装修公司做的这套房子是业主置换的改善型住房也是当之无愧。 客厅装修 原始户型图 更重要的是买房子的时候,这是一套楼梯房,但因为后期加装了电梯,由于要搭建电梯的候梯厅,几乎每家每户都扩出来2个平方的玄关区域。 平面布
点击此处查看全文
»
评论 (
0
) | 阅读 (
157
) | 类别:
装修公司
100㎡三房两厅装修 一人居住真的很宽敞啊!
(2020-10-13 10:48)
标签:
三房两厅装修
装修公司
一个人居住的房子,这么大!真的是令多少人羡慕啊,房子不是想买就能买的,首先得有足够的首付,其次还要保证未来的收入足够稳健,能够供得起房! 推荐文章:二手房改造装修如何选购瓷砖?大品牌还是小品牌? 所以说人家一个人能够住得起这么大的一个宅子,经济实力不容小觑的,自然在装修方面也不会亏待自己啊,这室内的配置看着就是不一样,比较崇尚自由和舒适度哦! 从平面户型图中可以看到,这是三房的格局,而且有两个
点击此处查看全文
»
评论 (
0
) | 阅读 (
158
) | 类别:
装修公司
小户型厨房装修有哪些真诚的建议?
(2020-10-10 14:23)
标签:
厨房装修
装修公司
朋友买了个小户型房子,发现厨房空间真的是很小啊,请问小户型厨房装修怎么设计?需不需要进行扩大设计呢?对此广州房屋装修肯定是需要设计师提供一些解决方案的,大家在实际生活中有见过这样的超小厨房吗? 推荐阅读:毛坯房装修儿童房间需要注意的点列举一下 趁着国庆双节黄金周,小编真的去参观了几个小户型样板房,发现小厨房真的很常见啊。当然我们看到的样板中,尽量都是缩小厨房空间,好给其他空间有更多展示的机会,
点击此处查看全文
»
评论 (
0
) | 阅读 (
142
) | 类别:
装修公司
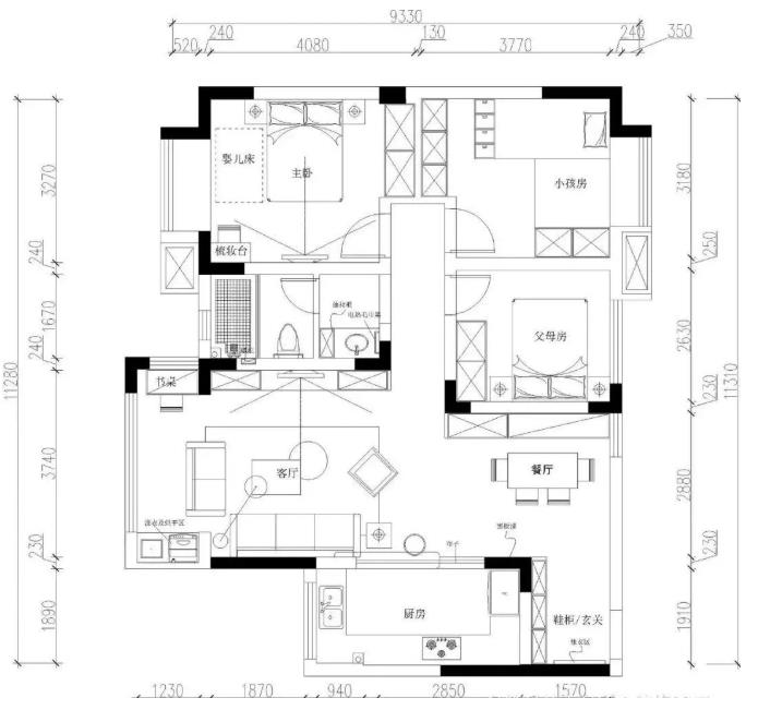
装修公司打造北欧风格三居室,100平米三代人住!
(2020-09-25 14:51)
标签:
合抱木
装修公司
今天咱们来欣赏的是100平方米的北欧风格三房两厅装修,这个房子其实是很宽敞的,从下面的户型图中可以看到,主卧跟小孩房以及父母房,每个房间都有很宽敞的空间,可以安装衣柜、过道也非常之灵活,主要是除了衣柜和床铺、床头柜之外,还有不少的空间可以用来自由的活动。 推荐文章:老式住宅翻新局部装饰还是全屋翻新好? 裁剪图片 然后我们看到装修公司设计的客厅和餐厅,不仅仅是采光非常好,户型也是很方正
点击此处查看全文
»
评论 (
0
) | 阅读 (
143
) | 类别:
装修公司
合抱木装修:3分钟看懂天花吊顶关键工艺,验收再也不怕!
(2020-09-18 18:08)
标签:
合抱木
天花吊顶
装修公司
新房装修过程中,大部分房子都会对天花吊顶进行一些装饰,尤其别墅的装修更离不开天花造型的设计,如果涉及到复杂的工艺造型,装修预算都得提高不少哦!今天小编带大家一起了解天花吊顶的施工,继续走进施工现场看看这些你不知道的细节处理吧! 原文:合抱木装修教你3分钟看懂天花吊顶关键工艺,验收再也不怕被蒙蔽! 天花吊顶的组成 首先给大家介绍一下天花吊顶是由哪些材料组成,分别有:木方、支
点击此处查看全文
»
评论 (
0
) | 阅读 (
304
) | 类别:
装修公司
« 前一页
1
2
3
下一页 »