一九二一码头火锅设计说明
以重庆市井老街文化为主线,在民国时期老铺中提炼,在室外,室内还原一个时代的街景。
一九二一码头火锅是重庆本土知名传统老灶火锅连锁企业,本项目位于重庆江北区鲁能星城火锅一条街,周围全部都是火锅店铺,且市面上其它火锅店设计风格依旧是以传统古老的中式古典建筑风格居多,如何能在此大环境中让人眼前一亮?设计师通过与委托方交流,认为照搬古建筑风格是不可取的,应该在火锅的起源上下功夫。以重庆本土老街为题材惊醒设计。
设计师在前期勘测中了解到,店铺面积约为150平米,开间较宽,通过规划及动线分析,将厨房设置在店铺的左后方,厨房墙面左边开门洞作为员工进出厨房通道,正面中间开窗作为火锅出菜区。店铺右后方为收银服务区。厨房与收银区的中间考虑为卫生间及盥洗区。将前面大半空间作为营业区。营业区室内部分设置有11张火锅桌。店铺的大门设计在整个店铺的右边,大门两边都设有窗户。进入大门后,留出很宽的通道,火锅桌则是在通道的两侧。视野非常的通透开阔。无形中扩大了店铺,让食客进入其间感觉店堂宽敞明亮。为了照顾到食客的舒适度,设计师将卫生间的门开在侧面,并增加了中式元素的墙体作为视觉遮挡。因为卫生间为三个隔间,相比厨房的墙面要内凹0.8米。将这块内凹的区域增加桌台作为调料区与碗碟取用区。将使用功能更加细分化。
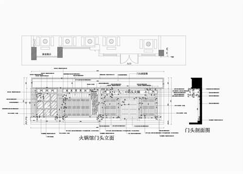
从外观看,店铺为很宽的长条形,设计师在左边做了一个橱窗,分为九个格子,每个格子外部为防弹玻璃,背后为通透的,格子放置古朴的土灶火锅炉装饰,展现火锅的古老历史。因为装饰品是可以更换的,还可以摆设民国时机的装饰品作为点缀,增强趣味性。从外面街上还能透过玻璃看到内部的灯火与食客,也增强了宣传。外墙再往右就是一排的窗户,设计师专门考察了历史文献与照片,将门窗样式还原上世纪二、三十年代的样子,调色过程中,连续做了很多块色板,做出想要的古旧的颜色。最有趣的是,每一扇窗中间装有轴承,窗户可以360度旋转,是可以完全打开的。特别是春秋季节,在不开空调的时节,整个店铺可以自然通风。窗的上方,设计师设计了能够左右活动的木百叶条。可以调节室内空气与光线。在门头的上方,设计师将火锅起源与发展的元素结合,做了一整条的砂岩雕刻,述说火锅的历史。同时也是很好的一块招牌。远远就能看见。同时将原有的柱子做了青砖及大青石的结合处理。柱子侧面也有店铺名称的招牌,不管从哪个方向,都能直观看到店铺招牌。室内的吧台,调理台,酒柜都是老木板制成。体现了历史的沉淀。因为顶面有不少的管线,烟道及消防管线,设计师将顶面喷为灰色,并用老木板做了假梁处理。大门的上方,设计师有意做成坡顶,并做了青瓦增强起艺术性。设计师还将外部街景引入室内,在室内模拟出二三十年代的老街。内部墙面贴上仿青砖饰面砖,既耐脏,又能表现出民俗感。留白的墙面则是设计师请美术学院的画家朋友帮忙直接在墙面绘制的重庆民俗文化老街景图。从室内就能看到墙面有错落的房屋,有实在的,有虚化的,还能看到旧电线杆的影子。在厨房与大厅的墙上,设计师还模拟旧时的街景做了挑出的阳台。还原旧时的街景。在软装上面,选择了具有年代感的灯具,木质吊扇,再配上带有民国色彩的宣传画,将食客带入一九二一那个年代。
在设计师拍摄店铺照片的当天,也是店铺还未试营业的时候,不少食客想要进去品尝,被委托方婉拒。欢迎开业再来。昨天刚刚正式营业,设计师通过委托方发出的视频及照片,整个室内营业区,门口外摆区早已坐满。还有不少食客坐等下一轮的品尝。委托方非常感动的说:“我非常满意!期待下次合作”!笔者感言,适合的设计真的能改变商业价值。
















所有评论