网站首页  用户名:密码:记住登录名

钟绍苹的博客

个人档案

钟绍苹

艾菲设计
室内设计师

日志分类

最近访客

统计信息

博客:1009 篇
评论:980
访问:正在读取...

日志

维拉小镇中式样板房

(2010-12-10 09:27)
标签:
A、与同类竞争性物业相比,作品独有的设计策划、市场定位:
维拉小镇是宁波首个湖滨别墅排屋小镇,面对的客户群体为超高端人群,因此样板房在强调奢华感和价值感的基础上,更要体现出居住的品质。
B、 更多说明
客厅
维拉小镇中式样板房-马辉的设计师家园-金堂奖2010China-Designer中国室内设计年度评选,别墅                                                                                                ,样板间,中式
门厅
维拉小镇中式样板房-马辉的设计师家园-金堂奖2010China-Designer中国室内设计年度评选,别墅                                                                                                ,样板间,中式
地下室品茶区
维拉小镇中式样板房-马辉的设计师家园-金堂奖2010China-Designer中国室内设计年度评选,别墅                                                                                                ,样板间,中式
地下室古琴区
维拉小镇中式样板房-马辉的设计师家园-金堂奖2010China-Designer中国室内设计年度评选,别墅                                                                                                ,样板间,中式
主卧
维拉小镇中式样板房-马辉的设计师家园-金堂奖2010China-Designer中国室内设计年度评选,别墅                                                                                                ,样板间,中式
书房
维拉小镇中式样板房-马辉的设计师家园-金堂奖2010China-Designer中国室内设计年度评选,别墅                                                                                                ,样板间,中式
次卧
维拉小镇中式样板房-马辉的设计师家园-金堂奖2010China-Designer中国室内设计年度评选,别墅                                                                                                ,样板间,中式
老人房
维拉小镇中式样板房-马辉的设计师家园-金堂奖2010China-Designer中国室内设计年度评选,别墅                                                                                                ,样板间,中式
客厅效果图
维拉小镇中式样板房-马辉的设计师家园-金堂奖2010China-Designer中国室内设计年度评选,别墅                                                                                                ,样板间,中式
主卧效果图
维拉小镇中式样板房-马辉的设计师家园-金堂奖2010China-Designer中国室内设计年度评选,别墅                                                                                                ,样板间,中式
卫生间效果图
维拉小镇中式样板房-马辉的设计师家园-金堂奖2010China-Designer中国室内设计年度评选,别墅                                                                                                ,样板间,中式
地下一层平面图
维拉小镇中式样板房-马辉的设计师家园-金堂奖2010China-Designer中国室内设计年度评选,别墅                                                                                                ,样板间,中式
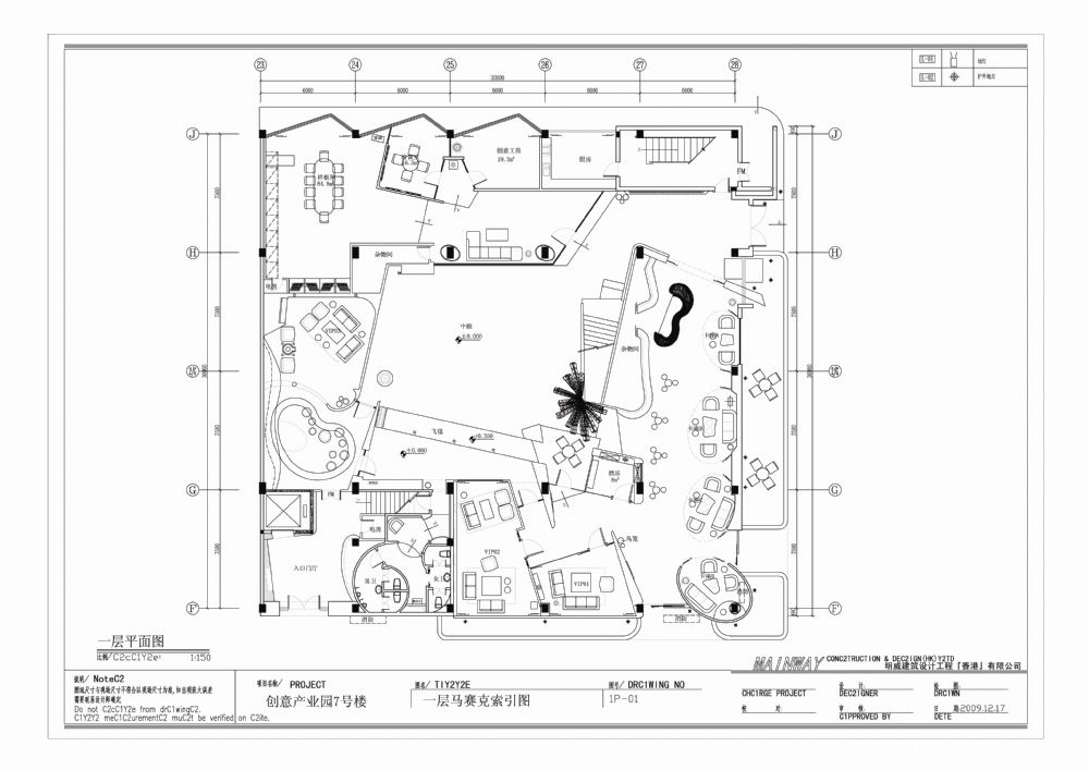
二层平面图
维拉小镇中式样板房-马辉的设计师家园-金堂奖2010China-Designer中国室内设计年度评选,别墅                                                                                                ,样板间,中式
三层平面图
维拉小镇中式样板房-马辉的设计师家园-金堂奖2010China-Designer中国室内设计年度评选,别墅                                                                                                ,样板间,中式
地下一层茶室立面
维拉小镇中式样板房-马辉的设计师家园-金堂奖2010China-Designer中国室内设计年度评选,别墅                                                                                                ,样板间,中式
一层客厅餐厅立面
维拉小镇中式样板房-马辉的设计师家园-金堂奖2010China-Designer中国室内设计年度评选,别墅                                                                                                ,样板间,中式
三层老人房立面
维拉小镇中式样板房-马辉的设计师家园-金堂奖2010China-Designer中国室内设计年度评选,别墅                                                                                                ,样板间,中式
四层主卧立面
维拉小镇中式样板房-马辉的设计师家园-金堂奖2010China-Designer中国室内设计年度评选,别墅                                                                                                ,样板间,中式
分享到 分享到豆瓣 分享到开心网 分享到新浪微博 分享到人人网
评论 (2) | 阅读 (237) | 类别  

所有评论

  • 喜欢这个中式的

  • 学习了

登录发表评论
用户名   密码   注册