小编今天推荐得到这套案例位于彭州的70㎡两居室装修,整体以北欧风格为主,硬装一共花12.5万,客餐厅一体化设计,阳台改地台休闲区太惬意!下面就为大家带来这套70平北欧风两居室装修案例,希望大家能够喜欢!
▲原始户型图
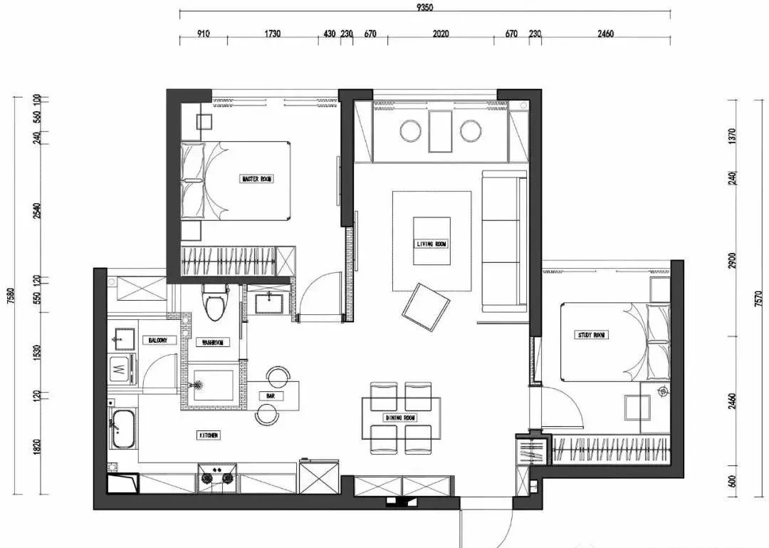
▲平面布局图
▲入户没有独立的玄关,在进沙发旁用黑框玻璃做隔断,划分出玄关空间。右手边定制的嵌入式玄关柜,上面还有挂钩,满足玄关的收纳需求。
▲客厅,以白色+灰色为主,加入亮黄、蓝色的点缀,整个空间赋有活力。电视墙没有多余的装饰,定制一组悬空电视柜,简单大方。
▲将阳台包进客厅,扩大使用面积和采光。采用了地台设计,将阳台打造成休闲区。一侧定制到顶的收纳柜,补充客厅的收纳功能。
▲餐厅在进门左手边,一侧墙面定制了整面墙的餐边柜,提供了充足的收纳空间。整体以原木+白色为主,让就餐空间明亮有质感。
▲厨房做开放式设计,墙地面通铺灰色瓷砖,搭配白色橱柜,整洁干净易打理。
▲次卧,木色地板搭配浅灰色背景墙,加上蓝绿色系的软装,营造出清新舒适的睡眠氛围。床一侧定制的衣柜+书桌柜的组合,床尾打造嵌入式展示柜,提供了超多的收纳空间。
▲主卧布置得温和清新,整体以绿白简约为主,搭配原木+白色的家具,简单温馨。
▲卫生间将洗手台外移,做彻底的干湿分离,提高了使用效率。




所有评论