婚房装修,我不知道别人是抱着什么样的心情去装的,而我,却是怀着满心欢喜。结婚,这两个字在唇间咀嚼的时候都会让人感到各种幸福各种满足,所以婚房装修,这让很多人吐槽的装修生活,我们都是乐在其中。怎样好好装扮我们能未来一起生活的家,怎样让我们的家充满爱,甚至是对于西蒙开关插座这些细节,我们都有多到数不清的想法。
看到很多人都会一再的考虑一再的纠结,我们表示很不解。因为我们的选择很简单。我们婚房装修的每一个细节都是我们绞尽脑汁,用自己最钟爱的方式去装修,这不是完结,这只是另一段更加完整的人生的开始,一个新的家渐渐完整的开始~
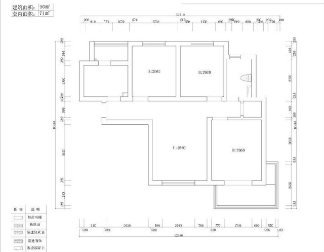
房型图



入户玄关:

.


图中背景墙贴
最爱的小灯:

玄关这里的拱门设计是老公最喜欢的,不仅增加了空间感和采光度,最重要的是一眼可以看到厨房。 老公说每天一回到家, 转头就能看到爱人在厨房张罗晚餐的背影,家的感觉才会油然而生。




餐厅的吧台也是我在网上找了好久的图, 最后设计师照着我找的图画的设计图,木工打出来的。 现在这个小俩口吃饭都在这个吧台上,真心实用。
厨房的地板特别实用,因为地板脏了也看不出来 哈哈~


家里有很多开放式的书架, 家人看到了直说容易积灰不实用。可总觉得装了玻璃之后总有种七八十年代的沧桑感。这两个月来,每次擦擦弄弄的时候掌玩一自己收集淘宝的各种装饰物萌物,也是很有乐趣的~






所有评论