网站首页  用户名:密码:记住登录名

杨柳的博客

个人档案

杨柳

一田一舍室内设计
室内设计师

最近访客

最新评论

友情链接

统计信息

博客:3 篇
评论:0
访问:正在读取...

日志

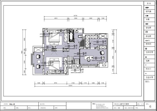
【待施工】-----◣熙龙山院 平面图定稿◥

(2016-07-05 14:24)
标签:

业主买这套房子主要给老父母养老,他们偶尔过来住。

一楼主要是老爷子的活动空间,所以更注重空间的流动性,公共空间过道通畅。

一楼原始量房图

分享到 分享到豆瓣 分享到开心网 分享到新浪微博 分享到人人网
评论 (0) | 阅读 (105) | 类别 案例分享  

所有评论

登录发表评论
用户名   密码   注册