博客频道
网站首页
用户名:
密码:
记住登录名
钟绍苹的博客
首页
日志
个人档案
钟绍苹
艾菲设计
室内设计师
日志分类
施工
(11)
家居设计
(168)
公共装饰设计
(129)
设计
(21)
建筑
(34)
最近访客
E图视界
4年前
尹桂林
7年前
xiefei
8年前
钱理民
9年前
余惟
9年前
胡秀文
9年前
庄馥菁
9年前
沈新俏
9年前
刘翠
9年前
最新评论
简历做的有特色
钟总 你好
不错啊。加油!
怎么不都传几个案例
学习
有情调
好美
主题要突出素和静来吗?
被绿色包围的感觉肯定很惬意。
疯狂,太帅了。喜欢,最近看了这些日志
友情链接
a963室内设计网
图满多
最近更新博客
刘建东
张铁军
袁志文
装饰设计
名杰客服
刘研德生
意辰
李贵芝
设计1667
统计信息
博客:
1009 篇
评论:
980
访问:
正在读取...
日志
北京奥运会指定运动员村--青岛奥帆赛洲际超五星酒店
(2010-12-28 09:11)
标签:
无
青岛洲际白金级酒店——2008奥运村0035
青岛洲际白金级酒店——2008奥运村0014
青岛洲际白金级酒店——2008奥运村0053
青岛洲际白金级酒店——2008奥运村0058
青岛洲际白金级酒店——2008奥运村0297
青岛洲际白金级酒店——2008奥运村0317
青岛洲际白金级酒店——2008奥运村0325
青岛洲际白金级酒店——2008奥运村0354
青岛洲际白金级酒店——2008奥运村6166
青岛洲际白金级酒店——2008奥运村6202
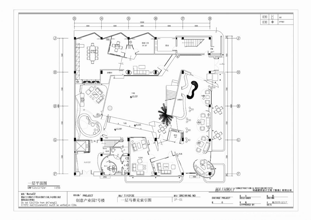
青岛奥帆赛比赛中心运动员村-29届奥运会唯一使用超五星级酒店做为 运动员村的场地。 级别:英国洲际酒店品牌系列中最高端-洲际旗舰 室内设计面积:9
更多说明
地点:青岛奥帆赛比赛中心运动员村-29届奥运会唯一使用超五星级酒店做为 运动员村的场地。 级别:英国洲际酒店品牌系列中最高端-洲际旗舰 室内设计面积:9.6万平方。总建筑11万平米。 室内设计时间:长达两年(断断续续) 施工时间:建筑三年、室内一年 业主单位:奥海集团(海尔集团、市府东奥集团) 监理单位:山东建院 酒店管理顾问组:英国洲际酒店管理集团IHG 建筑设计顾问组:北京建筑设计院 机电设计顾问组:美国柏诚机电 声学设计顾问组:香港金生宝 厨房设计顾问组:马来西亚CKP设计组 灯光设计顾问组:香港proteus-lighting设计组 软装设计顾问组:海尔集团 室内设计顾问组:海尔集团 施工单位:海尔集团总包(辖:上海康业、浙江亚厦、中建三局、北京中信、北京贝盟、沈阳白云、山东德泰、深圳晶宫、深圳洪涛、青岛东亚、青建置业、江河幕墙、金星消防、威海重钢) 酒店数据:客房加行政套房446间、总统套、豪华阁、婚庆礼堂各一套。一层9000平米内含:前厅水晶吧、总台、LOBBY吧、雪茄吧、郎姆吧、烧烤餐厅、会议中心。二层5000平米内含:300人中餐厅、24人VIP包房、酒房、SPA水疗吧、恒温泳池、健身中心。三层3500平米内含:500人报告厅、30人VIP接待、500人宴会厅、280人全日餐。负一层9000平米内含:设备、后厨、服务、办公。 酒店总投资:12亿 装饰投资4.2亿 楼主---我在哪呢? 我的职责:室内设计方总监 业主团队室内设计总管 总包深化设计团队设计总监 酒店技术顾问组组长 数据:室内设计方10人-业主团队50人-总包深化团队50人-酒店技术组8人 也就是说:设计、业主设计、施工设计、都要我总控。于是,我就是万金油......
青岛洲际白金级酒店——2008奥运村0006
青岛洲际白金级酒店——2008奥运村0001
青岛洲际白金级酒店——2008奥运村0002
青岛洲际白金级酒店——2008奥运村0003
青岛洲际白金级酒店——2008奥运村0004
青岛洲际白金级酒店——2008奥运村0005
青岛洲际白金级酒店——2008奥运村0006-1
青岛洲际白金级酒店——2008奥运村0006-2
青岛洲际白金级酒店——2008奥运村0007
分享到
评论 (
0
) | 阅读 (
378
) | 类别
前一篇:
香港保华集团综合楼
后一篇:
个人简历
所有评论
登录发表评论
用户名
密码
记住登录名
注册
所有评论